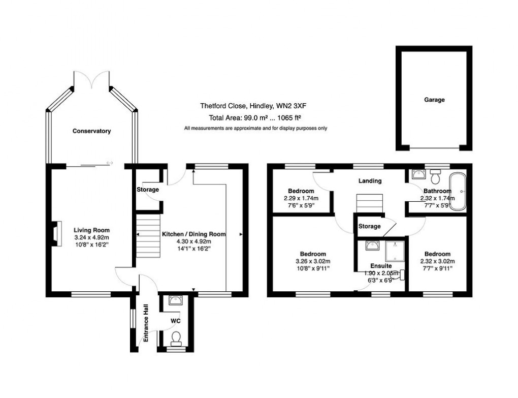
Description
- Detached Property
- Spacious Lounge
- Conservatory to Rear
- Driveway and Garage
- En-Suite to Master
A well-presented three-bedroom detached home on the popular Thetford Close in Hindley, featuring a central hallway with lounge, fitted kitchen, conservatory overlooking the rear garden and a downstairs WC. Upstairs offers three bedrooms with fitted wardrobes, including a master with en-suite, plus a
Council tax band: C.An attractive and well-presented three-bedroom detached family home, ideally positioned on the popular residential cul de sac of Thetford Close in Hindley, offering spacious accommodation, off-road parking and a garage.
The property welcomes you into a central entrance hallway with the staircase positioned in the middle of the home, creating a practical and well-balanced layout. To one side sits a bright and comfortable lounge, perfect for relaxing, which opens into a conservatory at the rear overlooking the garden and providing a lovely additional living space for dining or entertaining. To the opposite side of the hallway is a modern fitted kitchen offering ample storage and worktop space, along with a convenient downstairs WC completing the ground floor accommodation.
To the first floor, there are three well-proportioned bedrooms, all benefiting from fitted wardrobes, including a generous principal bedroom with a private en-suite shower room. A modern family bathroom serves the remaining bedrooms.
Externally, the home benefits from a driveway providing off-road parking, access to the garage and a private rear garden ideal for family use and outdoor entertaining.
Situated in a well-established and highly regarded area of Hindley, the property is conveniently located close to local amenities, well-regarded schools, transport links including Hindley train station and easy access to the M61 motorway network, as well as nearby parks and green spaces — making it an ideal choice for families and commuters alike.
This lovely home offers comfortable and versatile living in a sought-after setting and early viewing is highly recommended.
Floorplan
To discuss this property call us:
Market your property
with Kay Collins
Book a market appraisal for your property today. Our virtual options are still available if you prefer.
