Description
- DETACHED PROPERTY
- CORNER PLOT
- 3 BEDROOMS
- 3 RECEPTION ROOMS
- KITCHEN WITH BREAKFAST BAR
- DOWNSTAIRS W/C
- UTILITY ROOM
- DOUBLE GARAGE
- POPULAR RESIDENTIAL AREA
Beautifully positioned three‑bedroom detached home on a generous corner plot in peaceful Standish, featuring lounge, dining room, conservatory, utility, downstairs WC, garden and double garage — ideal family living in a popular residential area.
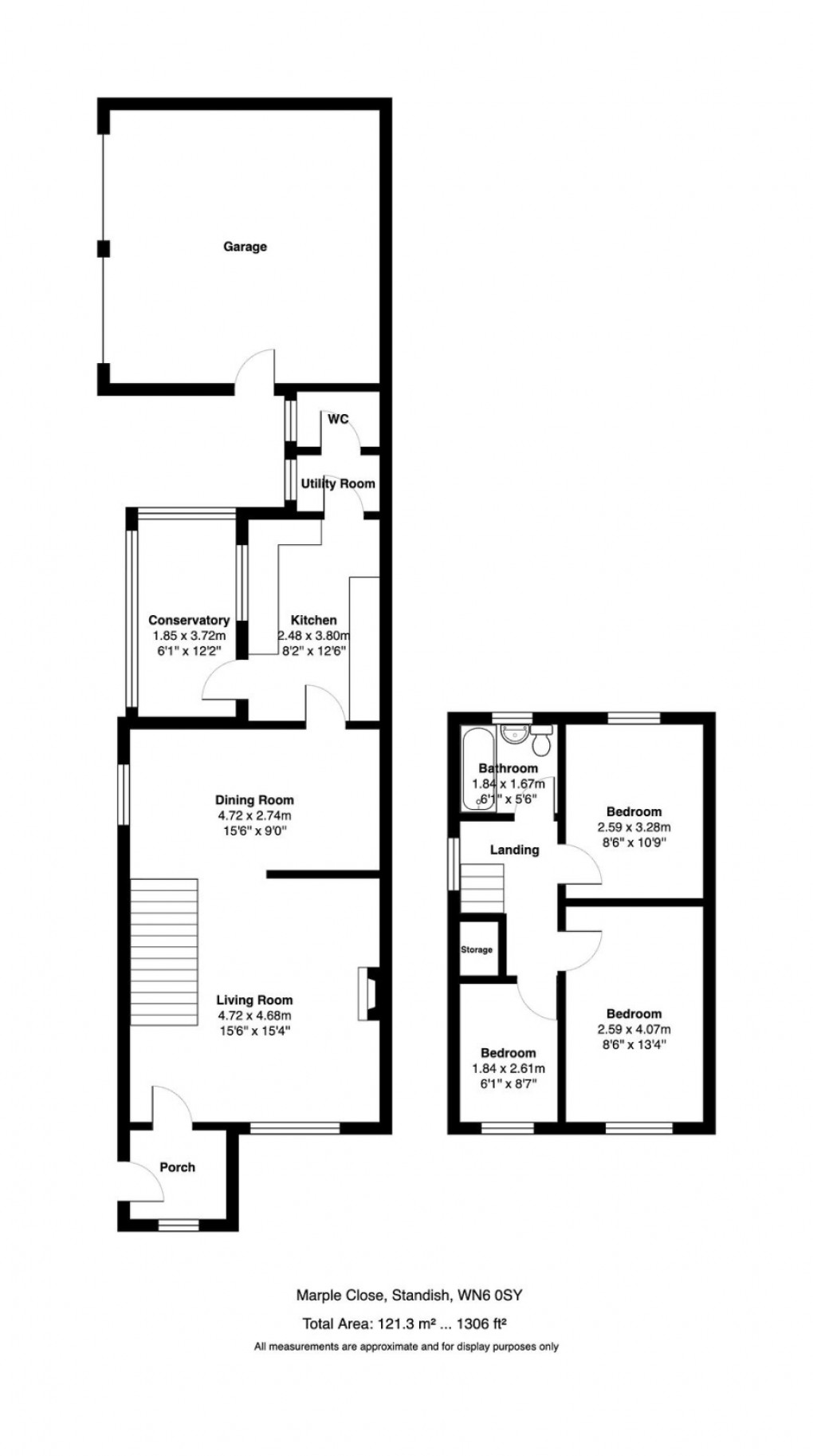
Council tax band: D.An exceptional opportunity to acquire a beautifully positioned three-bedroom detached family home set on a commanding corner plot in the highly desirable and peaceful residential location of Marple Close, Standish. The property welcomes you into a practical entrance porch which leads into a cosy lounge that flows effortlessly into the adjoining dining room, creating a versatile space for relaxed everyday living and entertaining. From here, the well-appointed kitchen with breakfast bar opens into a bright conservatory, providing a lovely additional living area with views over the garden. The ground floor also benefits from a convenient downstairs WC and a utility room, adding further practicality to the layout.
Upstairs, the landing leads to three comfortable bedrooms and a family bathroom, offering well-arranged accommodation suited to family life. Externally, the home enjoys well-tended rear and side gardens alongside a beautifully landscaped corner front garden that enhances the kerb appeal. A double garage provides excellent space for vehicles and storage.
Set within one of Standish’s most sought-after neighbourhoods, the property is ideally placed for those seeking peaceful, suburban living whilst still being well connected. Standish is a charming village-style community in the Metropolitan Borough of Wigan with a long history and attractive local centre featuring independent shops, cafés and traditional pubs, as well as everyday amenities close by. It benefits from excellent access to the M6 (Junction 27) and M61, making larger centres like Manchester, Liverpool and Preston reachable for commuting or leisure. Standish also offers a strong community feel with green spaces, parks and countryside walks nearby, making it particularly appealing to families and professionals alike, a delightful place to call home.
Floorplan
To discuss this property call us:
Market your property
with Kay Collins
Book a market appraisal for your property today. Our virtual options are still available if you prefer.
